本站出售
| 联系我们 |
|
 |
地 址:无锡市 (P.C:214000)
总 机:
E-mail:
|
 |
|
|
|
|
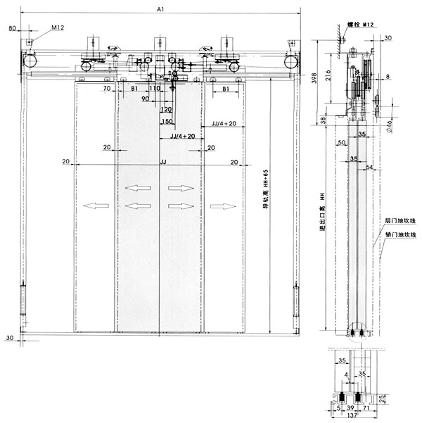
| 双折中分层门装置 | 

JJ
|
1400
|
1500
|
1600
|
1700
|
1800
|
1900
|
2000
|
2100
|
2200
|
2300
|
2400
|
2500
|
2600
|
2700
|
2800
|
2900
|
3000
|
A1
|
2516
|
2666
|
2816
|
2966
|
3116
|
3266
|
3416
|
3566
|
3716
|
3866
|
4016
|
4166
|
4316
|
4466
|
4616
|
4766
|
4916
|
B1
|
190
|
215
|
240
|
265
|
290
|
315
|
340
|
365
|
390
|
415
|
440
|
465
|
490
|
515
|
540
|
565
|
590
|
| | |  |
|