logo
   加入收藏 | 网站地图| 企业邮局
电梯轿厢服务热线电话:
主页导航 产品展示 新闻动态 关于我们 工程案例 客户反馈 联系我们
 
产品列表  
电梯轿厢
轿顶、轿底部件
门机
层门装置
电梯配套产品

本站出售

联系我们
tel
地 址:无锡市 (P.C:214000)
总 机:
E-mail:
工程案例
技术文库
联系我们
 
 
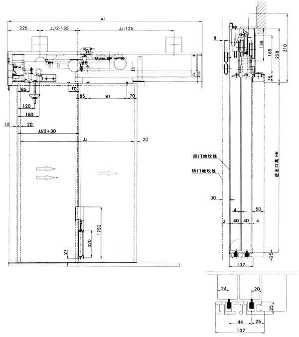
当前位置:首页 > 产品展示 > 双折层门装置
双折层门装置

 

JJ
900
950
1000
1050
1100
1150
1200
1300
1400
1500
A1
1515
1590
1665
1740
1818
1890
1965
2115
2265
2415
B1
325
350
375
400
425
450
475
525
575
625
相关产品
 width='150' style='border:1px #CCCCCC solid; padding:2px'/><br />铝合金梯极</a></td><td align='center' style='line-height:180%;'><a href='product_176_pone__ptwo_' title='SL-C型电梯轿厢'><img src=uploadfiles/201473/2014731454156.jpg alt=
SL-C型电梯轿厢
 width='150' style='border:1px #CCCCCC solid; padding:2px'/><br />SL-7型电梯轿厢</a></td><td align='center' style='line-height:180%;'><a href='product_174_pone__ptwo_' title='SL-3型电梯轿厢'><img src=uploadfiles/201473/20147314420637.jpg alt=
SL-3型电梯轿厢
    
COPYRIGHT © 2014 企业博客
地址: 邮编:214000 总机:
E-mail: